Оголошення не актуальне
Продаж 2-кімн квартири Центр, автономка (№ 212-760-644)
Ціна: договірна
Характеристики
| Ціна: | договірна |
|---|---|
| № об'єкта: | 212-760-644 |
| Кімнат: | 2 |
| Поверх: | 8 / 10 |
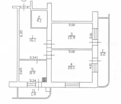
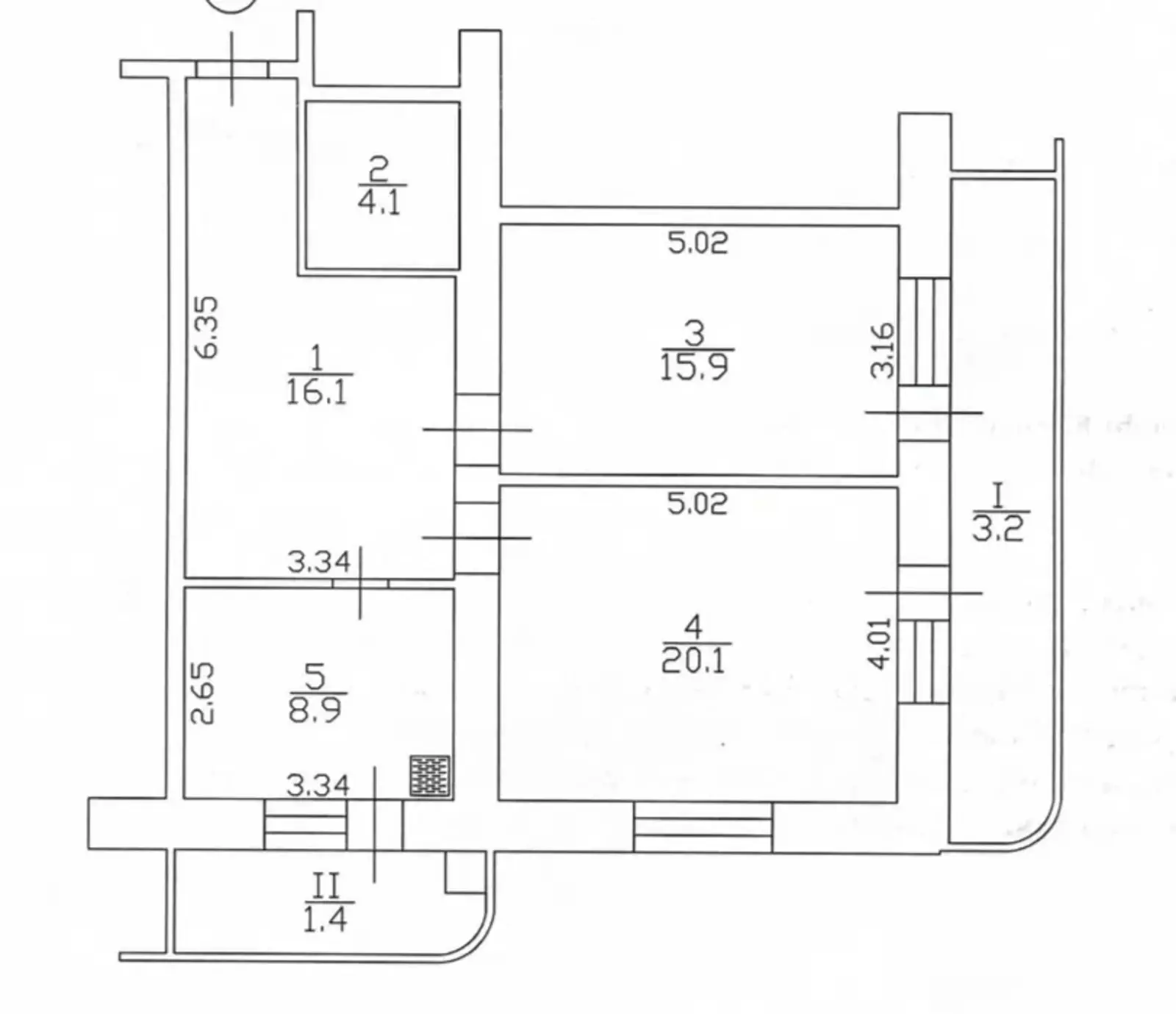
| Площа: | 70 / 9 / - м2 |
| Сдан/не сдан: | |
| Площадь кухни: |
Адреса: Чернігівська, Чернігів, пр-кт Перемоги, 108
Продаж 2-кімн квартири з ремонтом у Центрі, новий будинок
Квартира 70 м2 з автономним опаленням
Ізольовані кімнати
Великі лоджії на кожну кімнату і кухню
Зроблено якісний ремонт
Залишають меблі і техніку
На поверсі є окрема кладовка
За додаткову плату можна придбати два паркомісця в паркінгу у цьому ж будинку













