Продажа / Торговая площадь / ул. Шевченко, Рокоссовского, (№ 2-464-259)
Ціна: 260 000 $
Адреса: Шевченко ул., 112, Чернігів, Чернігівська, Деснянський
Характеристики
| Ціна: | 260 000 $ |
|---|---|
| № об'єкта: | 2-464-259 |
| Тип: | торгівельні площі |
| Поверх: | 1 / 5 |
| Площа: | 472.7 м2 |
| Додатково: | окремий вхід, парковка |
Опис
Продам комерційне приміщення на вул. Шевченка, 112 - пр.Левка Лук'яненко
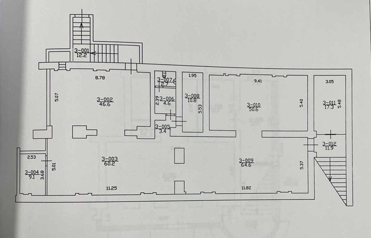
- Приміщення має 2 поверхи(перший та цокольний):
- Загальна площа – 472.7 кв.м.
- Корисна площа першого поверху –178.7кв.м.
- Корисна площа цокольного поверху – 294 кв.м
.
- Усі приміщення з якісним ремонтом
- Є система вентиляції є всі комунікації
- 4 Фасадні входи + 5й пожежний
- Центральне опалення з лічильником тепла
- встановлені дублюючі лічильники на електроенергію для кожного орендаря
- су в цоколі та су на першому поверсі, Світло - 65 кВт
- Біля приміщення проведено реконструкцію парку та прилеглих тротуарів.
гарний варіант, як для свого бізнесу, так і для орендного!
Мстиславська 18, АН Благострой




















