Сучасний та стильний будинок з ремонтом в районі Нива (№ 22-428-337)
Ціна: 158 000 $
Адреса: Бобровицкая ул., 28, Чернігів, Чернігівська
Характеристики
| Ціна: | 158 000 $ |
|---|---|
| № об'єкта: | 22-428-337 |
| Тип: | будинок |
| Поверхів: | 2 |
| Спалень: | 4 |
| Площа будинку: | 174 м2 |
| Ділянка: | 6 сот |
Опис
Продаж нового двоповерхового будинку 174 м2 з ремонтом. Побудований в 2020 році на 6-ти сотках приватизованої землі., ремонт закінчили в 2023 році. Будували і робили все не на продаж, а для себе, тому використовували тільки найкращі матеріали. Присутні всі центральні комунікації.
Знаходиться будинок по вулиці Бобровицький, неподалік ринку Нива та парку Березовий Гай. Має ідеальне місце розташування, зручний асфальтний під'їзд, тиха, другорядна вулиця від основної автомобільної дороги. Біля цього приватного сектора дуже розвинена інфраструктура. У пішій доступності є декілька Шкіл, дитячих садків, безліч різних магазинів та супермаркетів, АТБ, Пчілка, зупинки громадського транспорту.
Технології та матеріали:
Надійний фундамент із блоків ФБС (глибина 2 м)
Стіни з цегли та піноблоку — тепло та міцність на роки
Залізобетонні перекриття
Утеплення 100 мм +
Фасад — декоративна штукатурка «Короїд»
Дах з якісної італійської металочерепиці, утеплений 200 мм мінвати
Панорамні енергоефективні вікна
Внутрішнє оздоблення:
Стіни з ефектом «Шовк» — виглядають дорого й стильно
Підлога:
▫️ 1 поверх — керамограніт + тепла підлога
▫️ 2 поверх — ламінат 33 класу (Австрія)
Дубові сходи, натяжні та фарбовані стелі
Міжкімнатні двері з натурального дерева
Вхідні — броньовані
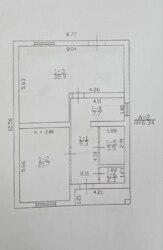
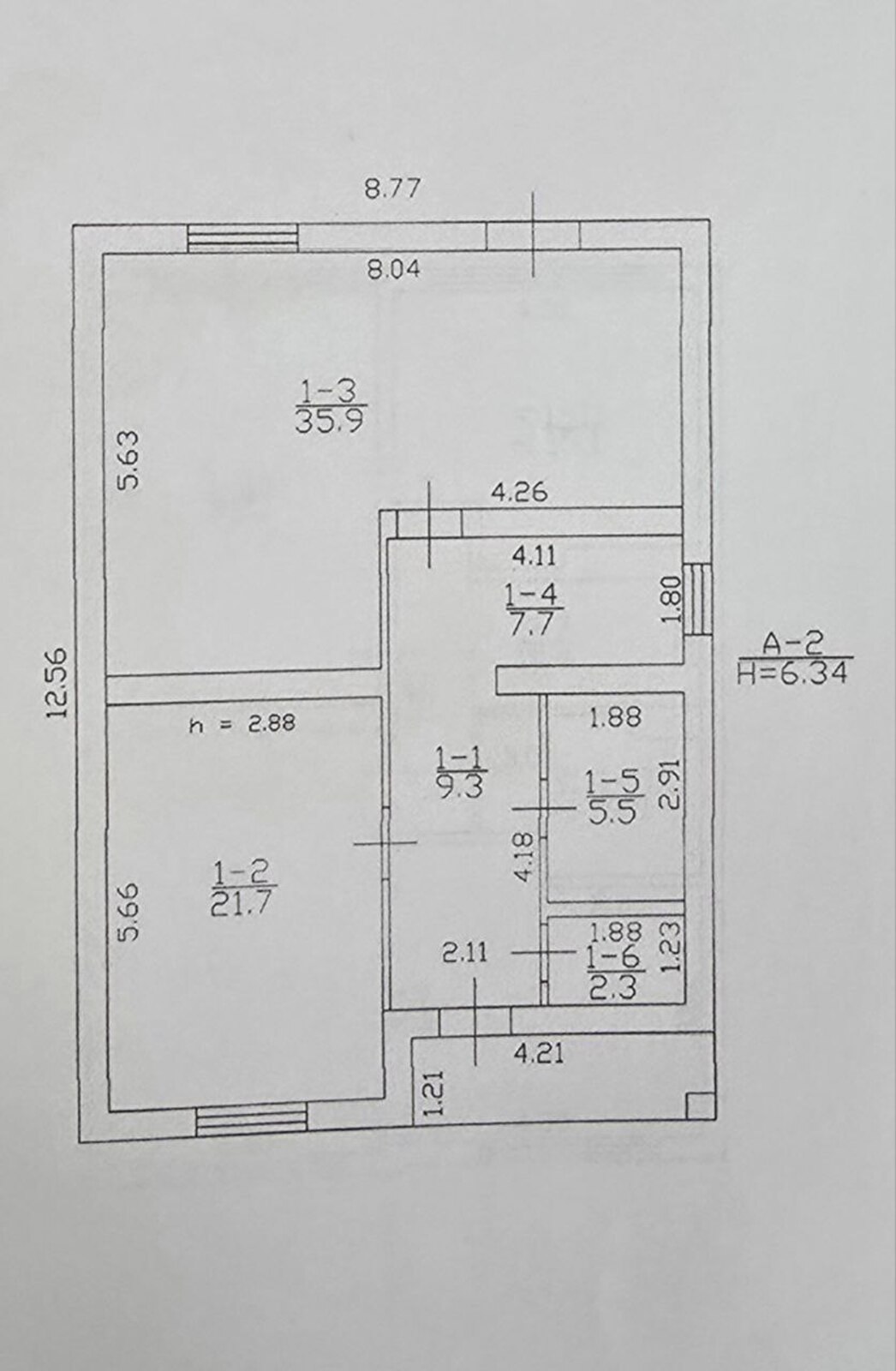
Зручне планування:
1 поверх: кухня-їдальня, з виходом у двір (36 м²), ванна (5,6 м²), туалет (2,3 м²), коридор (9,3 м²), сходовий марш (7,7 м²) і простора кімната яку можна використовувати як гостьову кімнату чи кабінет (21,7 м²).
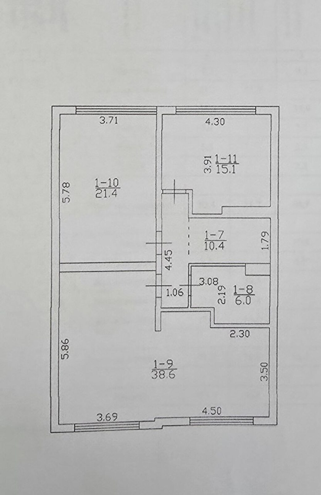
2 поверх: три спальні (15,1 м² / 21,4 м² / 38,6 м²) + санвузол (6 м²).
Будинок повністю готовий до життя!
Сучасний дизайн, якісні матеріали, продумане планування — усе, щоб вам було комфортно з першого дня проживання.
Дзвоніть прямо зараз — домовимось про перегляд!

























































