Головна >> Продаж приватних будинків, дач в Чернігові, каталог приватних будинків, дач >> Ріелтор Борисенко Сергій >> Об'єкт №22422484
Продається будинок рапопорта, Чернігів, Чернігівська (№ 22-422-484)
Ціна: 139 000 $
Адреса: рапопорта, Чернігів, Чернігівська
Характеристики
| Ціна: | 139 000 $ |
|---|---|
| № об'єкта: | 22-422-484 |
| Тип: | будинок |
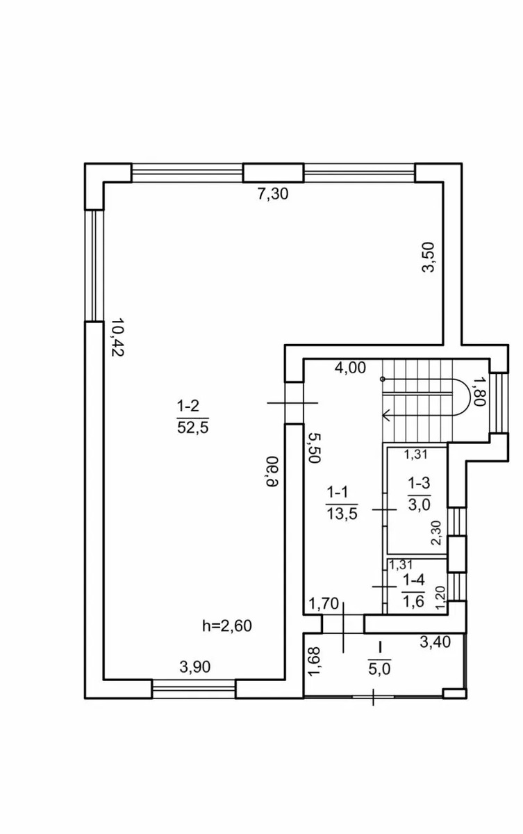
| Поверхів: | 2 |
| Площа будинку: | 140 м2 |
| Ділянка: | 7 сот |
Опис
Новий сучасний будинок елітний район.
Новий світлий сучасний будинок в прекрасному місці, побудований якісно із сучасних матеріалів, елітний район,вся інфраструктура,підїзд асфальт до будинку, вул. Рапопорта.
Відстань до найближчого міста: У місті;
Кількість кімнат: 4;
Тип будинку: Будинок;
Тип стін: Газоблок;











