Єдина пропозиція: 2к кв майже в Центрі міста! Закрита територія. (№ 213-213-716)
Ціна: 58 000 $
Характеристики
| Ціна: | 58 000 $ |
|---|---|
| № об'єкта: | 213-213-716 |
| Кімнат: | 2 розд |
| Поверх: | 5 / 5 ліфт |
| Площа: | 56 / 32 / 10 м2 |
| Санвузол: | 1 роздільний |
| Балкон: | балкон+лоджія |
| Сдан/не сдан: | сданий |
| Площадь кухни: | 10 |
| Додатково: | новобудова |
Адреса: Чернігівська, Чернігів, Деснянський, Паркова ( Савчука ), 7-Д
Єдина пропозиція: 2к кв майже в ЦЕНТРІ міста! Закрита територія!.
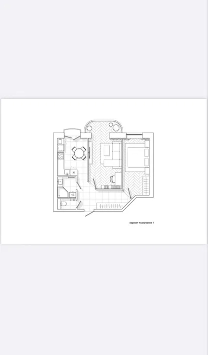
Таких квартир у місті на продаж просто немає. Розташування, планування, будинок, можливості інфраструктури створюють пропозицію, яка не повторюється. Тут ви отримуєте не просто квадратні метри, а шанс сформувати простір, де якість життя відчуватиметься щодня. Можливість, яка з’являється рідко. Двокімнатна квартира, розташована в середині будинку. Це забезпечує стабільне тепло та тишу незалежно від пори року. Продумане індивідуальне планування створює відчуття свободи та гармонії: • вітальня з панорамною лоджією 19 м2 • спальня 14 м2 • світла кухня з виходом на французький балкон • окремі ванна та туалет • широкий коридор Стан після забудовника. Встановлені якісні вхідні двері. Покупцю будуть запропоновані готові дизайнерські рішення, адаптовані під це планування, що дозволить без затримок переходити до створення інтер’єру. Будинок з червоної цегли, теплий і надійний. Комфорт щодня забезпечує просторий ліфт, охайні сходи, пандус, закрита територія. На першому поверсі планується басейн і кав’ярня, що підвищує рівень зручності і дозвілля мешканців. Є можливість придбати гараж. Раціональний вибір для тих, хто цінує комфорт у всьому.
Вид обєкта: Новобудова;
Тип будинку: Житловий фонд від 2021 р.;
Назва ЖК: Паркова,7д;
Тип стін: Цегляний;
Клас житла: Комфорт;
Планування: Роздільна;
Cанвузол: Роздільний;
Опалення: Індивідуальне електро;
Комфорт: Гараж, Ліфт, Балкон, лоджія, Панорамні вікна;
Комунікації: Асфальтована дорога, Центральна каналізація, Вивіз відходів, Електрика, Центральний водопровід;
Інфраструктура (до 500 метрів): Школа, Магазин, кіоск, Зупинка транспорту, Ресторан, кафе, Супермаркет, ТРЦ, Дитячий майданчик, Парк, зелена зона;
Ландшафт (до 1 км.): Ліс;























